Oferuję do wynajęcia lokal 4-pokojowy z osobną kuchnią o powierzchni 77 m2 przy ul. Łukowej 7 na warszawskim Mokotowie - Służew nad Dolinką. Idealne na biuro lub lekką działalność.
Zaledwie 2 przystanki autobusowe od Stacji Metra Służew!
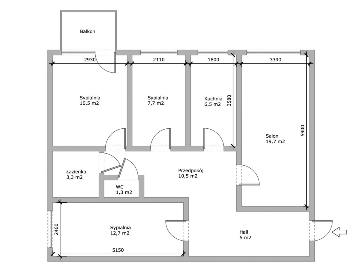
Na lokal składają się:
- Salon 19,70m2
- Pokój 12,70m2
- Pokój 10,50m2 - z wyjściem na balkon,
- Pokój 7,7m2
- oddzielna kuchnia z oknem 6,5m2
- łazienka 3,3m2
- osobna toaleta
- duży przedpokój, hall i balkon.
Lokal jest przestronny, dobrze nasłoneczniony, zadbany i gotowy do wprowadzenia się.
Kwestia umeblowania pozostaje do ustalenia z właścicielem.
W mieszkaniu pokoje i łazienki są po generalnym remoncie. Piękny widok z okna na otaczającą zieleń.
Budynek po remoncie, ocieplony, mamy tu kilka wejść do klatki z różnych stron oraz otaczający parking - bez problemu można tu zaparkować o każdej porze dnia.
Lokalizacja
W okolicy sklepy spożywcze (Lidl, Biedronka), żabka, restauracje, pizzeria, lokale usługowe, placówki edukacyjne i tereny zielone- nieopodal Park Dolina Służewiecka. Dobry dojazd do SGGW, SGH, Politechniki, UW, oraz do Wilanowa.
Komunikacja
Stacja Metra Służew - 2 przystanki autobusowe (10min)
Autobusy linii:
* 189, 193, 317, 401, 402, N33, N50, N83 - przystanek Noskowskiego (4 minuty na pieszo)
* 164, 217, 251 - przystanek Łukowa (4 minuty na pieszo)
* 107, 148, 163, 166, 185, 189, 402, 503, 519, N03, N33, N50, N83 - przystanek Dolina Służewiecka (4 minuty na pieszo)
Całkowity koszt najmu:
4900 PLN + opłaty (1.300 czynsz + prąd)
Umowa najmu na minimum 12 miesięcy.
Lokal wolny od zaraz.
Zapraszam do kontaktu i na prezentację Nieruchomości!
4 osobne pokoje/Osobna kuchnia/Metro 10min/Biuro
lokalizacja: Warszawa, Łukowa
4 900,00 PLN
65,33 PLN
Dane szczegółowe
- Typ transakcji: wynajem
- Typ nieruchomości: Komercyjny
- Lokalizacja: Warszawa Mokotów Służew, Łukowa
- Powierzchnia:75 m2
- Liczba pokoi: 4
- Rok budowy: 1978
- Piętro: 6 z 10
- Numer oferty: 34964544784
- Cena: 4 900,00 PLN
- Cena za m2: 65,33 PLN
Opis nieruchomości
Kontakt do opiekuna:
VIVA Nieruchomości