Klimatyczne, dwustronne mieszkanie wśród zieleni

lokalizacja: Warszawa, Konduktorska

1 079 000,00 PLN

16 600,00 PLN

Opis nieruchomości

W skrócie:

  • ul. Konduktorska 8 / Mokotów - Sielce
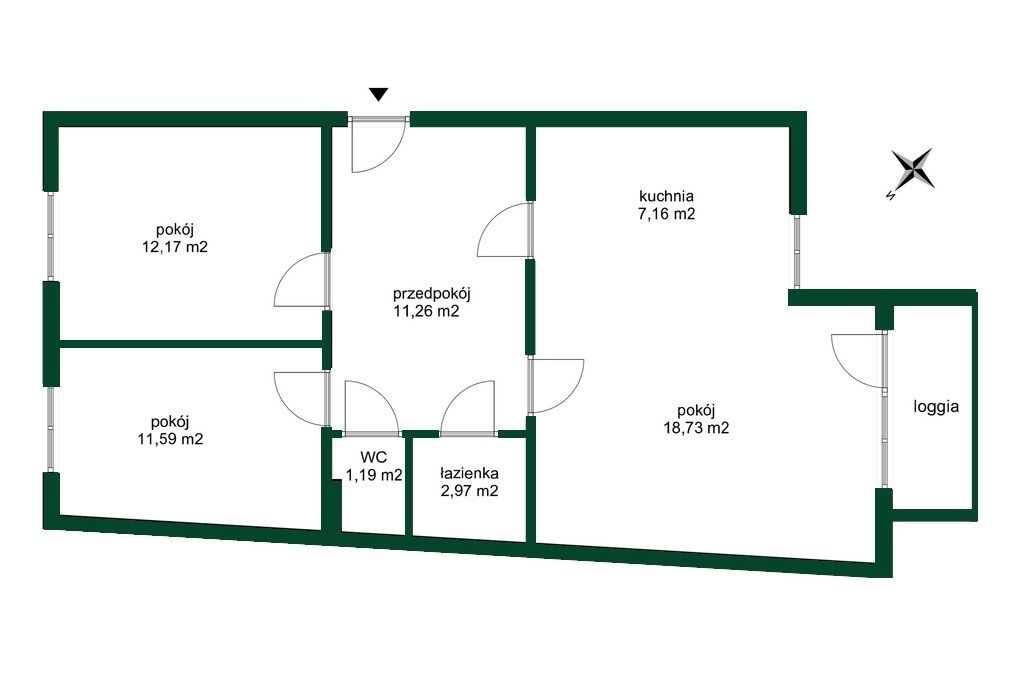
  • 3 pokoje z aneksem kuchennym / 65,07 m²
  • spółdzielczo-własnościowe prawo do lokalu z księgą wieczystą - możliwość posiłkowania się kredytem oraz wyodrębnienia własności
  • mieszkanie rozkładowe, dwustronne

Szczegóły:
Nieruchomość o powierzchni 65,07 m² położona jest na trzecim piętrze czteropiętrowego budynku z cegły z 1988 roku.
Mieszkanie jest dwustronne, z ekspozycją na północny-wschód (sypialnie) oraz południowy-zachód (salon z kuchnią). Taki układ zapewnia dobre doświetlenie wnętrz w ciągu dnia – poranne światło pojawia się w części sypialnianej, a po południu w salonie.
Układ mieszkania jest rozkładowy i funkcjonalny – z wyraźnym podziałem na część dzienną i prywatną. Salon połączony z kuchnią tworzy wygodną przestrzeń do codziennego życia i spotkań, natomiast dwa oddzielne pokoje mogą pełnić funkcję sypialni, pokoju dziecięcego lub gabinetu.
Lokal jest po częściowym remoncie – wymieniona została instalacja elektryczna w pokojach, przedpokoju oraz kuchni, a także odnowiona została drewniana podłoga (cyklinowanie).


Na nieruchomość składają się:
  • salon z aneksem kuchennym – 25,89 m²
  • I sypialnia – 12,17 m²
  • II sypialnia – 11,59 m²
  • łazienka – 2,97 m²
  • toaleta – 1,19 m²
  • przedpokój – 11,26 m²
Dodatkowo:
  • balkon – 3,54 m²
  • piwnica – 4,33 m²


Budynek:
Nieruchomość znajduje się w ogrodzonym budynku wybudowanym z cegły w 1988 roku, położonym na Mokotowskich Sielcach przy ul. Konduktorskiej. Budynek zarządzany jest przez sprawnie działającą Spółdzielnię Mieszkaniową i przechodzi systematyczne remonty.
W ostatnich latach wykonano m.in.: remont elewacji, remont dachu, odmalowanie klatek schodowych, wymianę pionów wodno-kanalizacyjnych.
W budynku dostępna jest instalacja trójfazowa (siła) – istnieje możliwość doprowadzenia jej do mieszkania.

Lokalizacja:
Mieszkanie znajduje się w zielonej i spokojnej części Mokotowa – na Sielcach, w otoczeniu licznych parków i terenów spacerowych. To lokalizacja ceniona za połączenie zieleni z wygodnym dostępem do miejskiej infrastruktury.
W zasięgu spaceru znajdują się m.in.: Park Promenada, Park Morskie Oko, Park Szustrów, Park Arkadia, Skwer Małkowskich. Nieco dalej znajdują się również Łazienki Królewskie.
W okolicy działają liczne kawiarnie, restauracje, sklepy oraz punkty usługowe, co sprawia, że codzienne sprawy można załatwić bez konieczności dalszych dojazdów.

Odległości:
  • przystanek autobusowy – 100–200 m
  • Carrefour Express – 180 m
  • kawiarnie – 180 m
  • park – 350 m
  • Carrefour Market – 400 m
  • Biedronka – 400 m
  • kościół – 500 m
  • Park Wodny Warszawianka / korty tenisowe – 500 m
  • placówki oświatowe – do 1 km

Zapraszam do kontaktu i na prezentację podczas dnia otwartego.

Kontakt do opiekuna:

VIVA Nieruchomości

VIVA Nieruchomości
Nieprawidłowy adres E-mail
Mapa

Strona korzysta z plików cookie w celu realizacji usług zgodnie z Polityką prywatności. Możesz określić warunki przechowywania lub dostępu do cookie w Twojej przeglądarce.